Klapperstenen
Svart fasad och tidslösa plåtdetaljer i Aluzink är en otrolig kombination. Huset som inrymmer dryga 100 kvm boarea på plan 1 har även loft samt ett fristående garage.
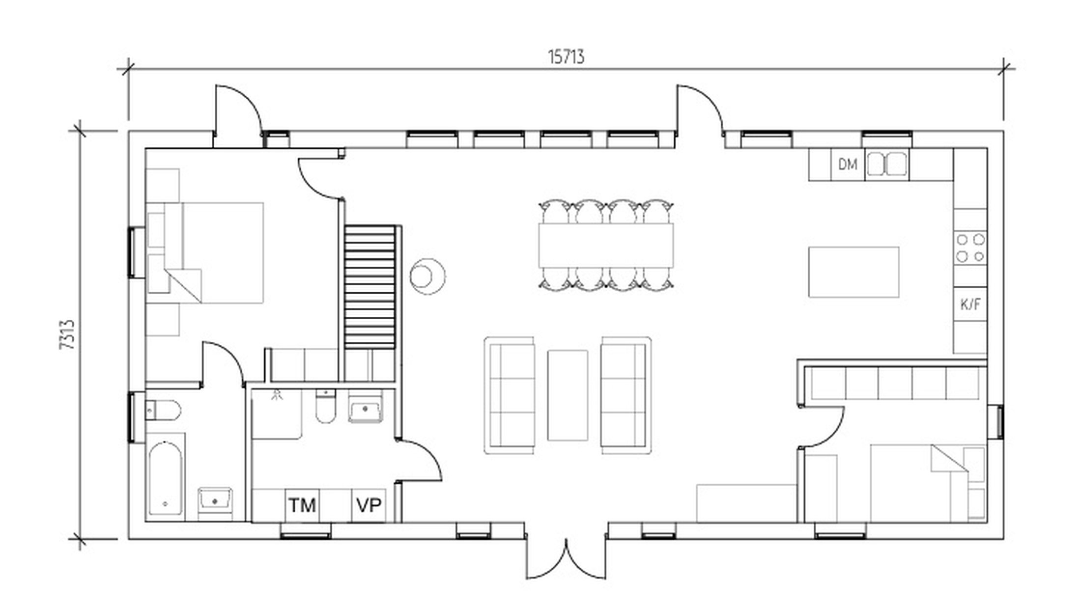
Här har kunden skapat en trevlig boning som till planlösningen både är praktisk och öppen. En riktig idyll!
Detta hus har byggts med vårt småblockssystem. Drömmer du om något liknande, prata med oss berättar vi mer!
Snabbfakta
BOA
102 kvm
BYA
114 kvm
ANTAL RUM
4 rum
TAKLUTNING
37 grader
YTTERTAK
Kami Classic
FASAD
Funkispanel
BYGGÅR
2021

BEGÄR OFFERT
Fyll i dina uppgifter så kommer vi att kontakta dig!
Skickat!