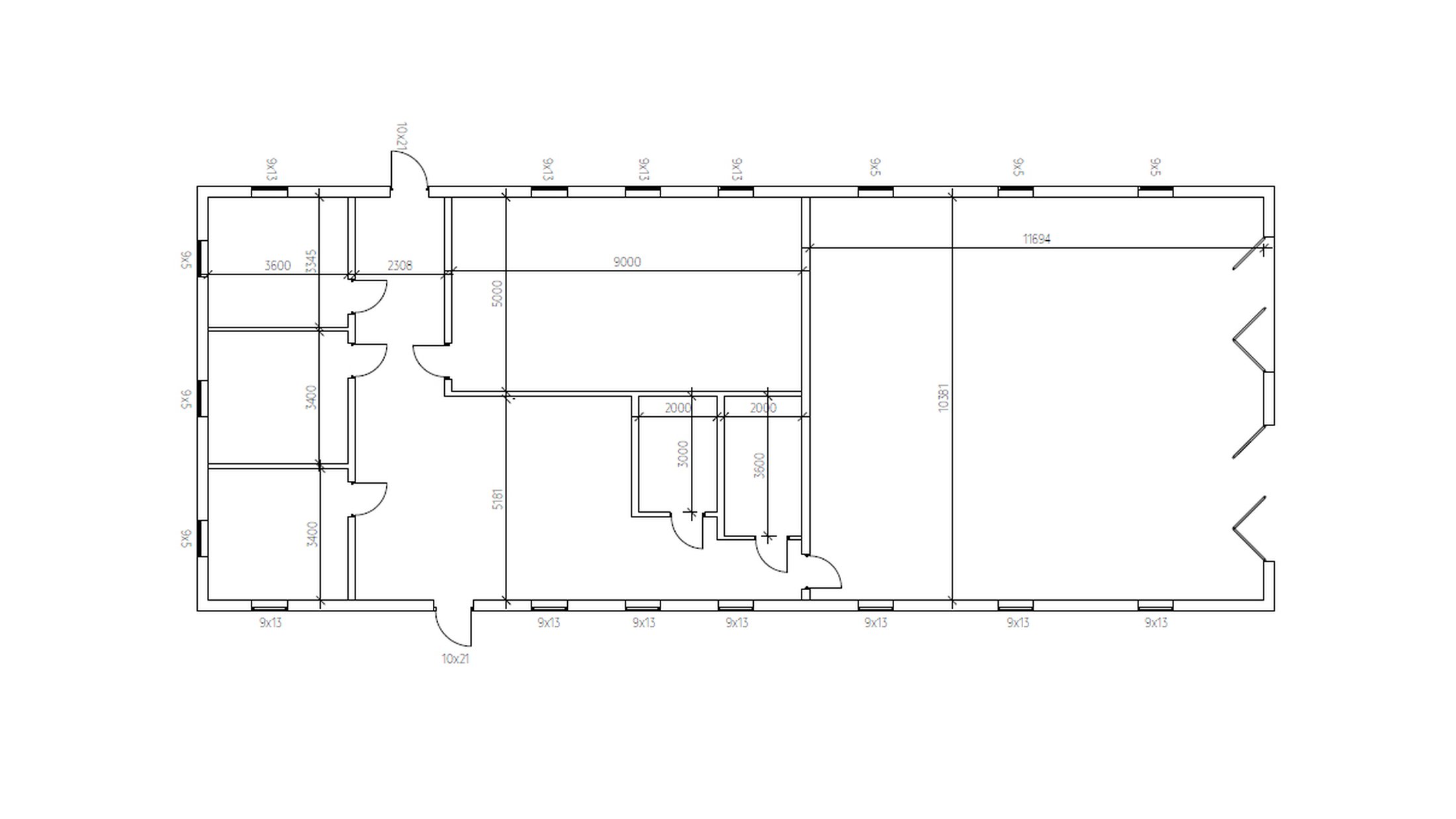
Kombinerad maskinhall
Kund som kombinerat byggnaden för sina verksamheter. Här inhyser man maskinhallsdel/verkstad samt kök, mötesrum och andra praktiskt utrymmen som passar verksamheten.
Med sina 302 kvm finns det gott om plats för företagaren eller privatpersonen som gillar utrymme.
Snabbfakta
GRUNDYTA
10.8 x 27.6 meter
STORLEK
302 kvm
YTTERTAK
Pannor - Bender Palema
PANEL
Standardpanel
YTBEHANDLING
Faluröd slamfärg
TAKLUTNING
22 grader
VÄGGHÖJD
4.0 meter
BYGGÅR
2023

BEGÄR OFFERT
Fyll i dina uppgifter så kommer vi att kontakta dig!
Skickat!