Fritidshus i Småblock
Ängstorpet
Prisförfrågan
Begär offertVill du ha grundentreprenad?
Ja
Pris
Byggsats
449900:-
Montage
226000:-
Grund
374000:-
Byggsats
449900:-
Montage
226000:-
Grund
374000:-
675900:-
675900:-
inkl. moms
Fakta
Typ
Fritidshus
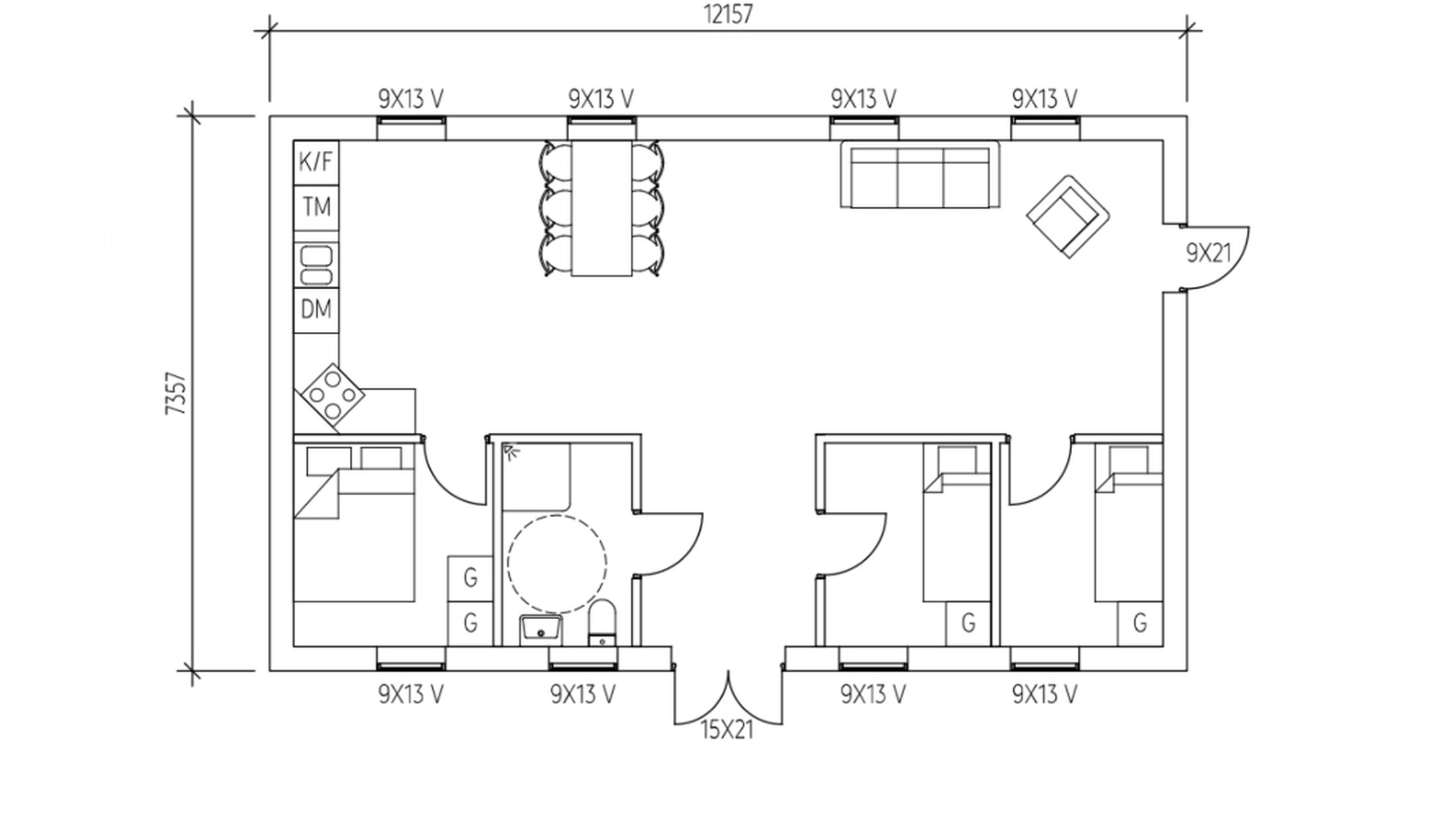
Bredd
Ca 7,3 m
Längd
Ca 12,1 m
Byggarea
Ca 89 m²
Fritidshus i Lundqvists småblockssystem som optimerats för det lantliga och fridfulla intrycket.
Vårt standardiserade byggsystem lämnar, standardiseringen till trots, en hel del utrymme för anpassningar. Kombinera ditt lantställe precis som du själv önskar då takstolarna är fribärande och bärande innerväggar inte krävs.
Prisexemplet är endast ett förslag och går självfallet att vidareutveckla eller justera för att passa just er. Tänk dock på att utgå ifrån att varje block är 1,2 m brett.
Specifikationer
Frågor & svar

BEGÄR OFFERT
Fyll i dina uppgifter så kommer vi att kontakta dig!
Skickat!