Gläntan
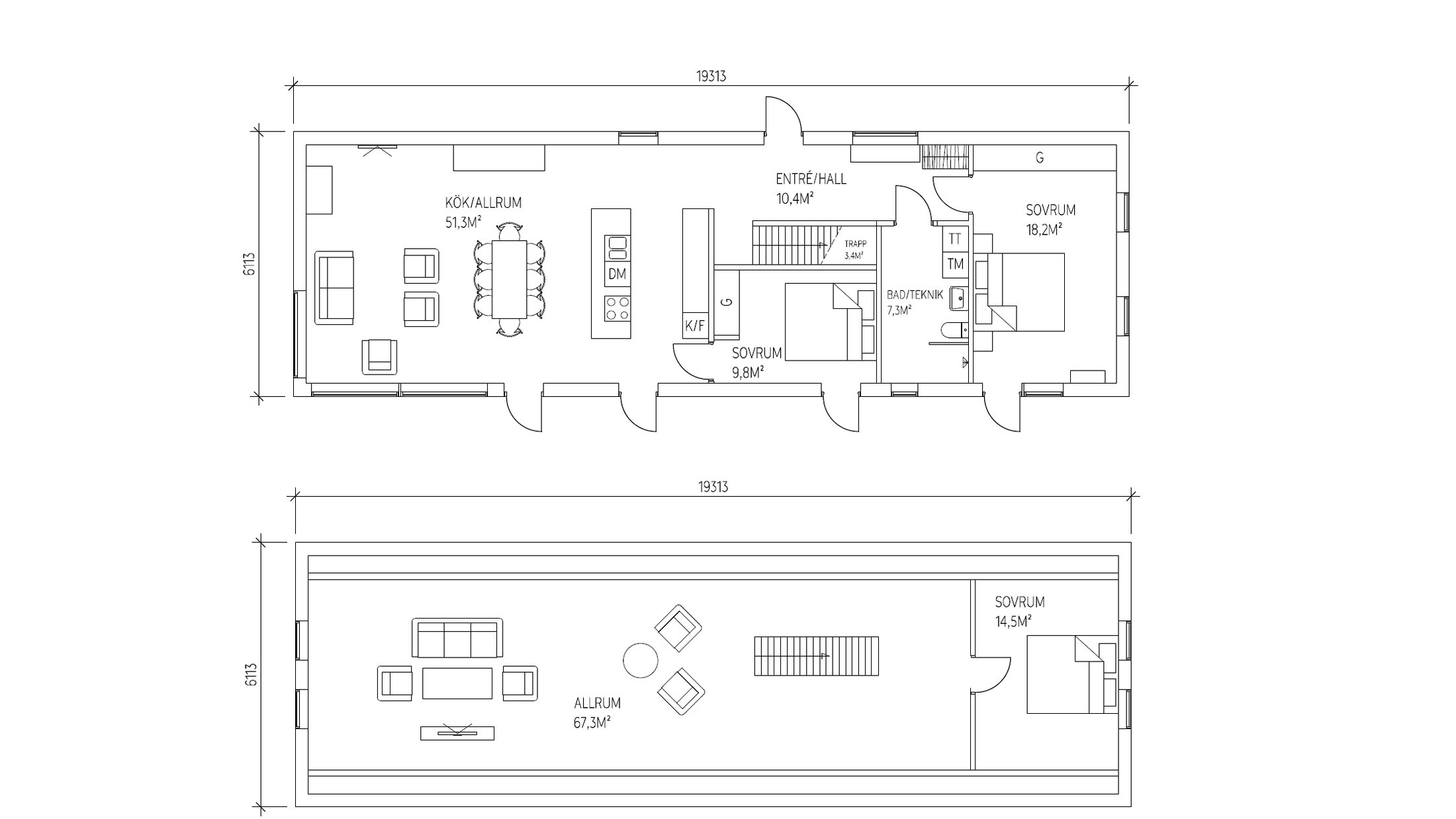
Ljusinsläpp och tidlös design. Stora ytor för umgänge och spelkvällar. Ett otroligt hus som kan anpassas som permanentboende eller sommarhuset på landet. Svarta fönster i kombination med neutrala färger på in och utsida ger ett genuint och ombonat intryck till bostadens 149 kvm ink plan 2.
Snabbfakta
BOA ENTRÈPLAN
103 kvm (Exkl. plan 2)
BYA
118 kvm
BOA ÖVERVÅNING
46 kvm
ANTAL RUM
4 rum
TAKLUTNING
38 grader
YTTERTAK
Plåt - Kami Classic
BYGGÅR
2022

BEGÄR OFFERT
Fyll i dina uppgifter så kommer vi att kontakta dig!
Skickat!