Maskinhall på 435 m²
Maskinhall med järnvitriol
Anpassa efter dina behov
Öppna maskinhall med järnvitriol i 3DPris
Se 3D-konfigurator
inkl. moms
Fakta
Maskinhall
Ca 435 m²
22°
4,8 m
45x195
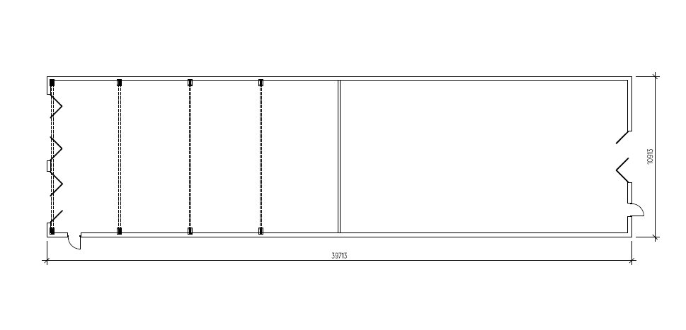
Här har vi Lundqvisthallen värdig bilar som Mclaren och Porsche! Maskinhall med portar på respektive gavel och en underhållsfri ytbehandling i form av järnvitriol.
Byggnaden breder ut sig över 435 m² och har en vägghöjd på 4,8 m. I mitten av maskinhallen sitter en avstyvande mellanvägg som även fungerar som en avskiljare och en naturlig yta för att inreda med arbetsbänk och förvaring av verktyg etc.
Hallen, som är byggd i vårt småblocksystem, lämnar även utrymme för ett mindre entresolplan med intilliggande fikarum eller förvaringsrum om man hellre vill det. Det här bygget visar verkligen på byggsystemets möjligheter och att det är ett väldigt gott alternativ för dig som vill bygga maskinhallen i hållbart material som trä.
Värt att notera på just den här planlösningen, är att det krävs en limträram på den sida av byggnaden som har två portar för att klara av de rådande konstruktionskraven.
Specifikationer

BEGÄR OFFERT
Fyll i dina uppgifter så kommer vi att kontakta dig!
Skickat!