Stenudden
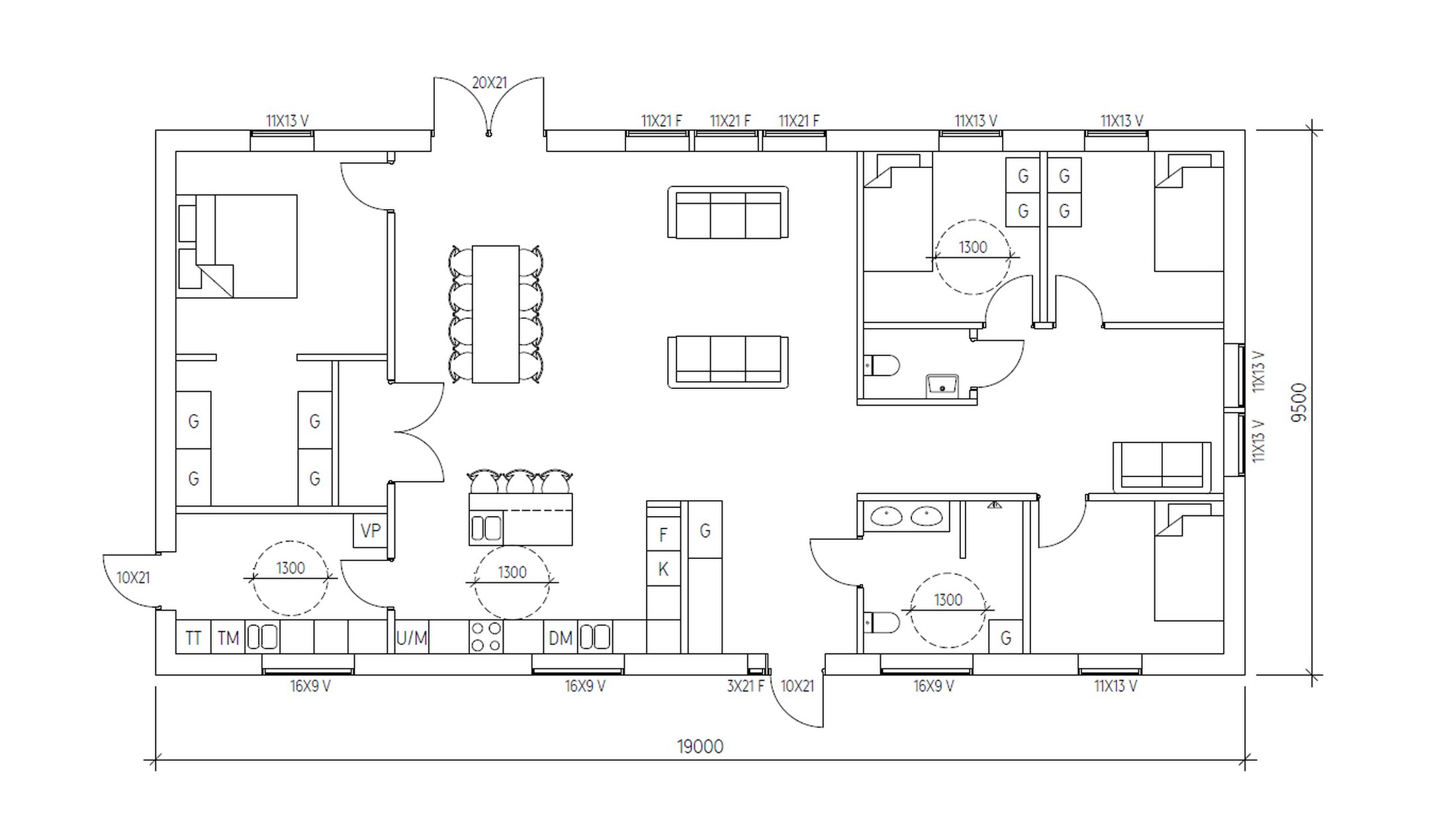
I denna rymliga villa har kunden lyckats bocka av många ”must-haves” när det gäller planlösning! Rymligt kök, walk in-skafferi, groventré, ordentligt sovrum för de vuxna med egen klädkammare och sist men inte minst, stor yta för barnen att umgås på. Hatten av till denna kund!
Detta hus har byggts med vårt storblockssystem. Drömmer du om något liknande, prata med oss berättar vi mer!
Snabbfakta
BOA
160 kvm
BYA
180 kvm
ANTAL RUM
5 rum
TAKLUTNING
27 grader
YTTERTAK
Kami Classic
FASAD
Ålesundspanel
BYGGÅR
2022

BEGÄR OFFERT
Fyll i dina uppgifter så kommer vi att kontakta dig!
Skickat!