Villa Dalen
Villa Dalen är optimerad med ett trevligt sällskapsutrymme, stora glaspartier och möjlighet för gemenskap. Här kan man spendera många fina lovdagar eller njuta av vårvintern när solen återvänder. Den mörka träfärgade fasaden möter en tidlös och ljus insida.
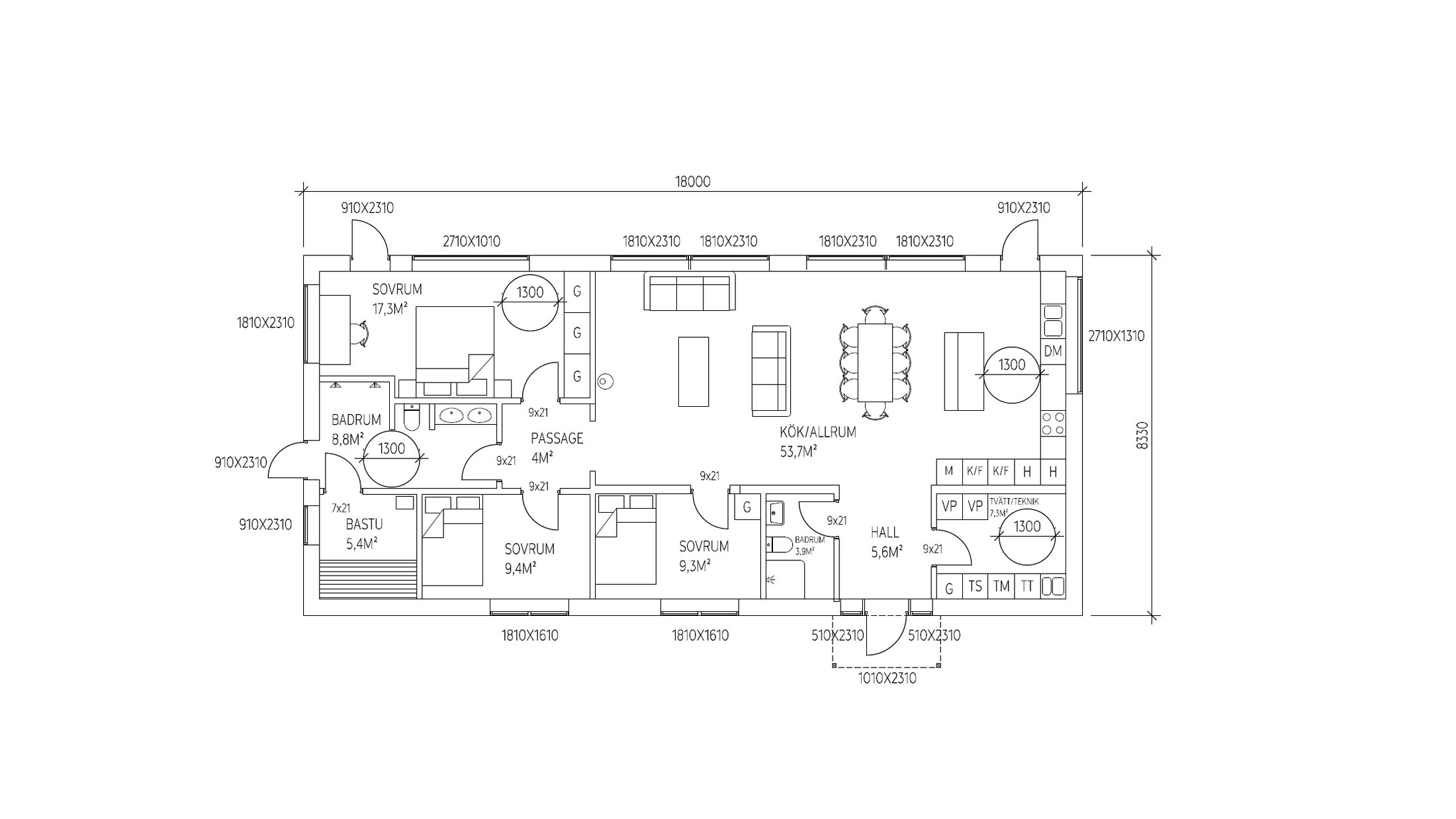
Snabbfakta
BOA
130 kvm
BYA
150 kvm
ANTAL RUM
4
FASAD
Funkispanel
YTBEHANDLING
Järnvitriol
YTTERTAK
Plåt - Kami Classic
BYGGÅR
2022

BEGÄR OFFERT
Fyll i dina uppgifter så kommer vi att kontakta dig!
Skickat!