Villa Bullerviken
Trevlig och praktisk villa på 1 & 1/2 plan med vidbyggt garage.
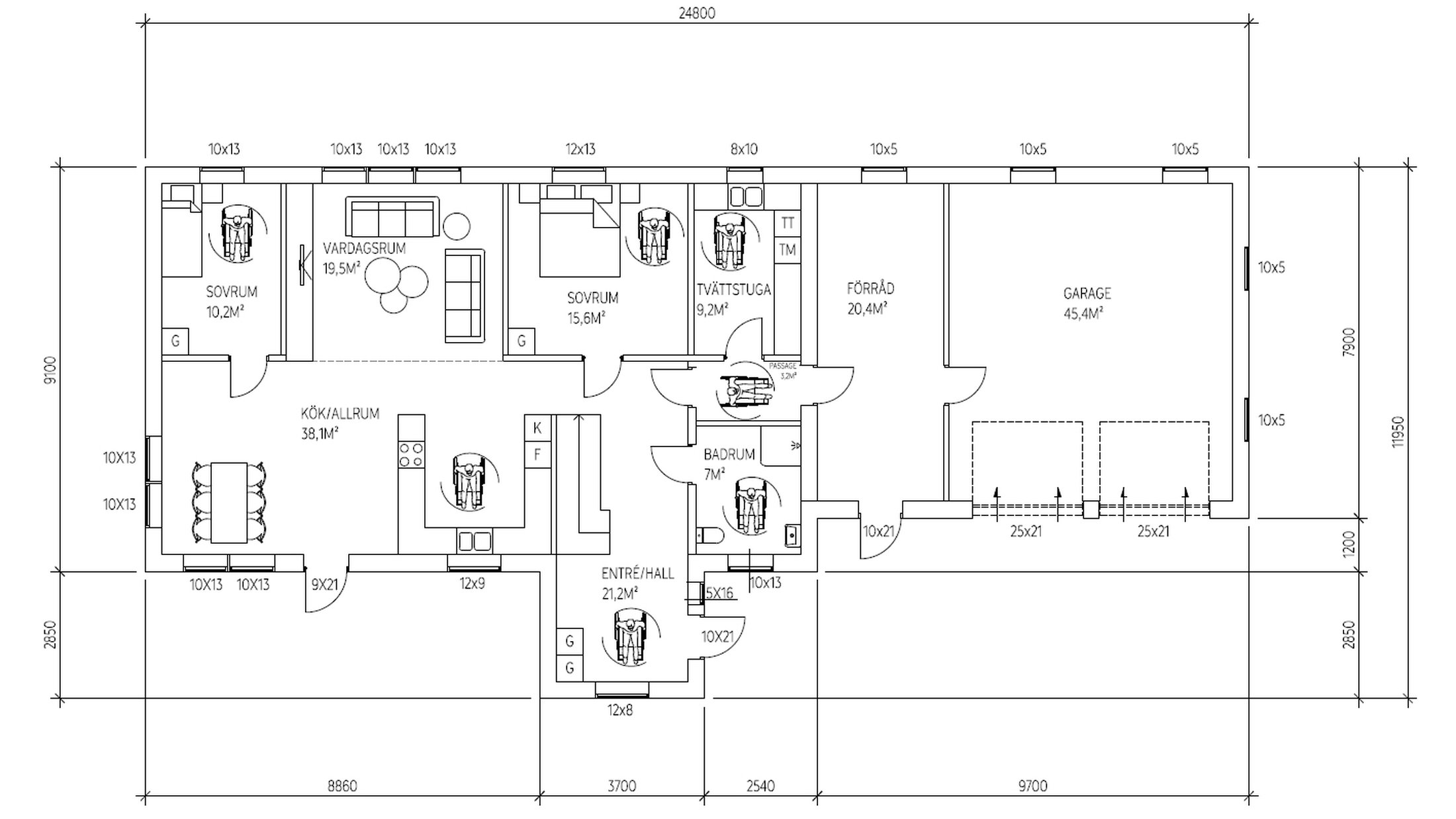
Här har kunden själv ritat upp en planlösning som inhyser både stora sällskapsytor, förvaringsmöjligheter och flertalet sovrum. Perfekt för den större familjen.
Snabbfakta
BOA PLAN 1
151 kvm
BYA
225 kvm
BIA
45 kvm
ANTAL RUM
4
TAKLUTNING
38 grader
YTTERTAK
Plåt - Plegel 1-kup
PANEL
Standardpanel
BYGGÅR
2017

BEGÄR OFFERT
Fyll i dina uppgifter så kommer vi att kontakta dig!
Skickat!