Villa Gråhällan
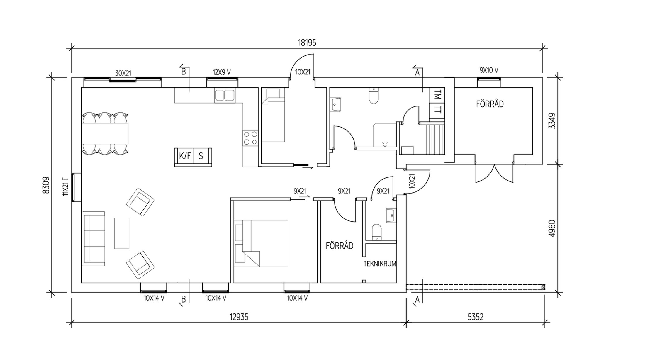
Carport i framkant och praktiskt förråd i anslutning på 8 kvm. Huset på sina 102 kvm boarea erbjuder en tidlös och stilren design. När du kliver in i huset möts du av en öppen planlösning där vardagsrummet och köket smälter samman. Denna yta är perfekt för både vardagsliv och sociala tillställningar med ett stort skjutparti som släpper in rikligt med naturligt ljus.
Detta hus har byggts med vårt storblockssystem. Drömmer du om något liknande, prata med oss berättar vi mer!
Snabbfakta
BOA
97 kvm
BIA
8 kvm
BYA
151 kvm
ANTAL RUM
3 rum
TAKLUTNING
27 grader
YTTERTAK
Kami Classic
FASAD
Standardpanel
BYGGÅR
2022

BEGÄR OFFERT
Fyll i dina uppgifter så kommer vi att kontakta dig!
Skickat!